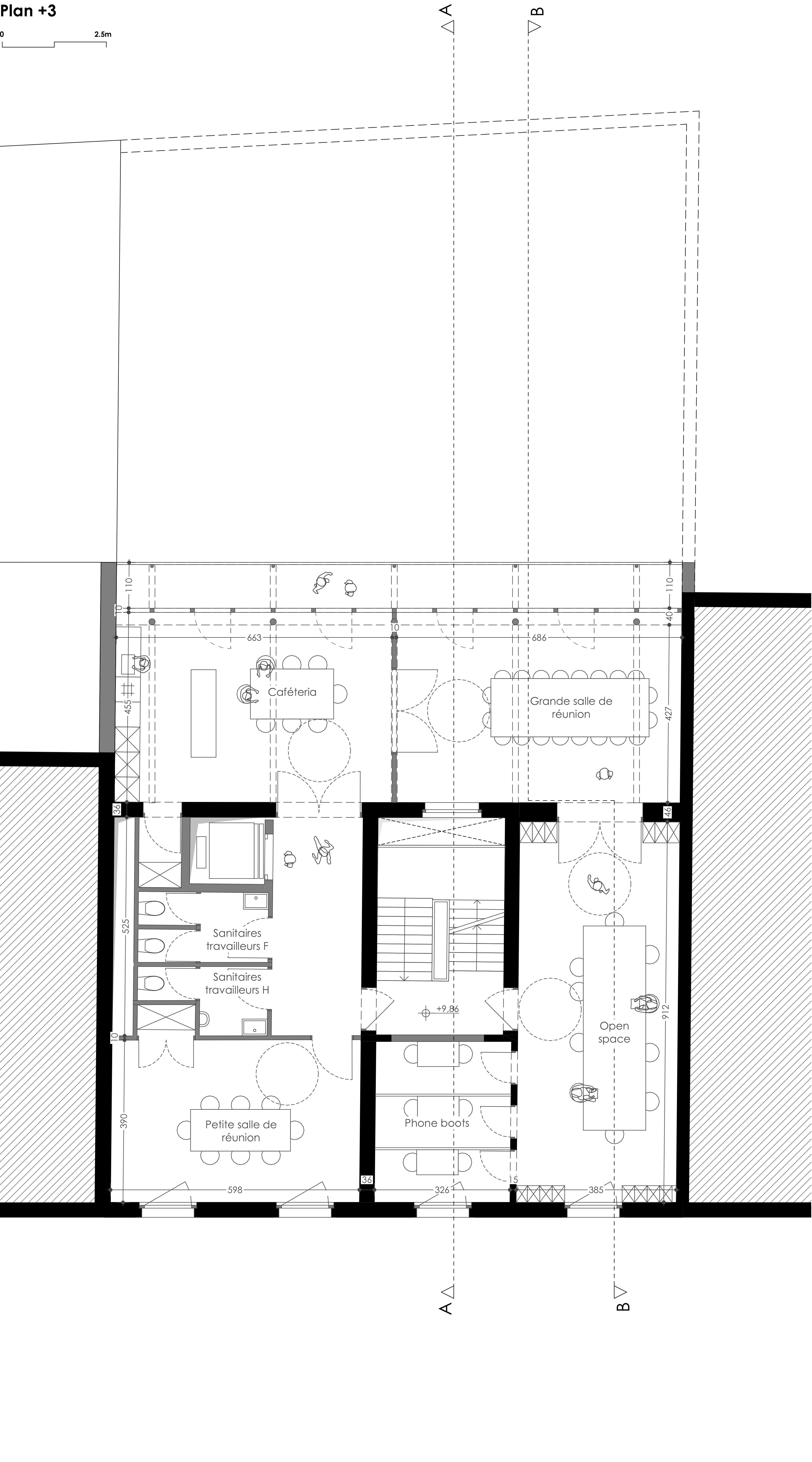
CSSI - COLLINE
Centre social santé intégré.
Rue Dupont / Schaerbeek.
Cotraitant Architecte : époc architecture
Paysage : Les marneurs
Stabilité : Bureau d’etude Cerfontaine
TS/PEB: Détang engineering
Rue Dupont / Schaerbeek.
Superficie : 1100m2.
Cotraitant Architecte : époc architecture
Paysage : Les marneurs
Stabilité : Bureau d’etude Cerfontaine
TS/PEB: Détang engineering
Transformation d’un bâtiment en un équipement mixte «santé / jeunesse» .
Statut : compétition, 2ème place


