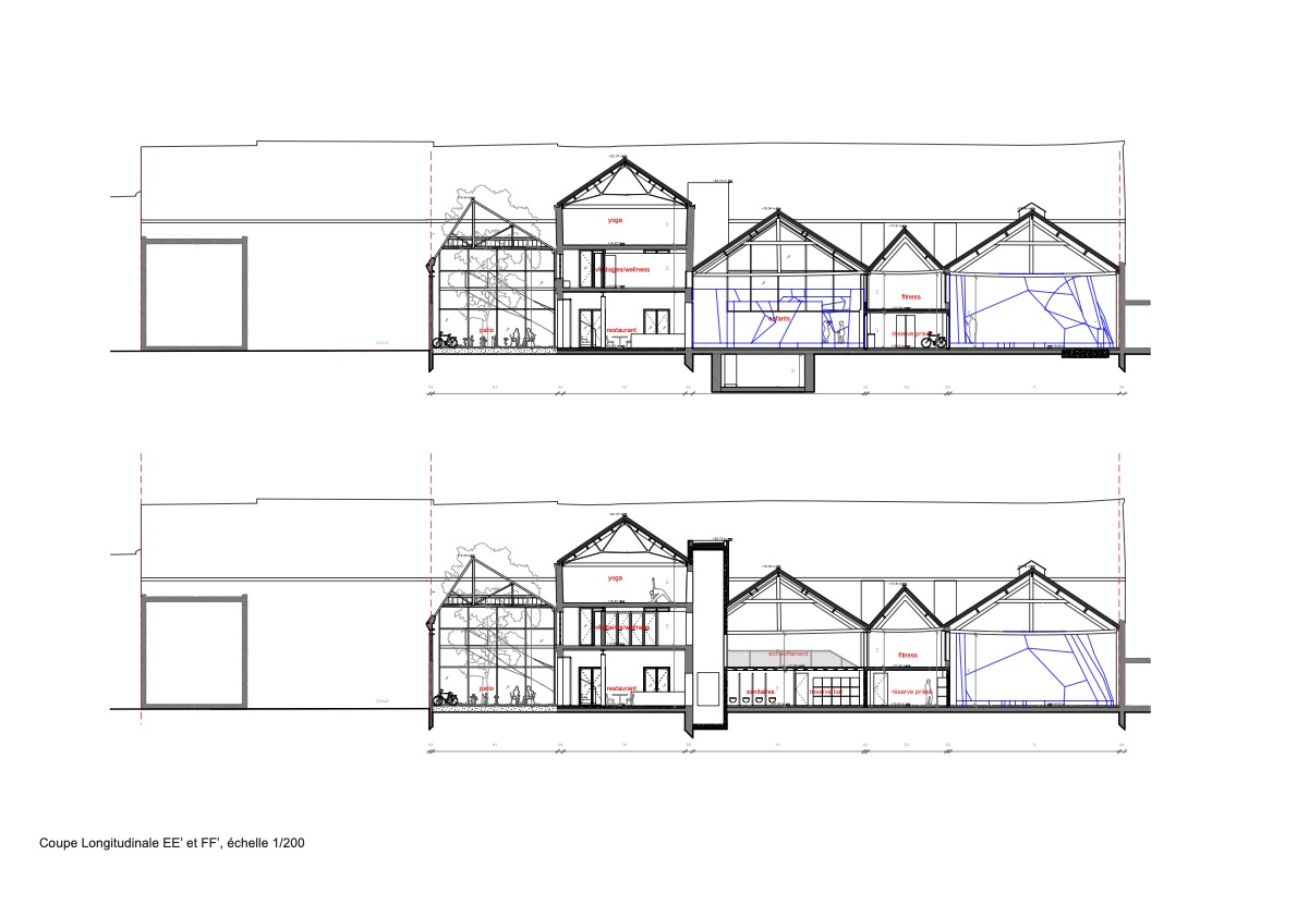
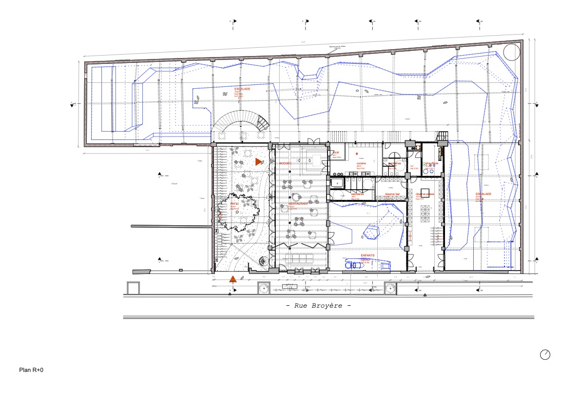
PETITE ÎLE BROYÈRE
Centre sportif.
Cotraitants Architectes : Alice Loizidis,
Victoire & Jean-Marc Chancel
Stabilité : Bollinger+Grohmann
Techniques Spéciales/PEB: Pluricité
Maîtrise d’ouvrage : Petite Île SRL
Rue Broyère / Anderlecht.
Superficie : 2300m2.
Statut : en cours
Superficie : 2300m2.
Statut : en cours
Cotraitants Architectes : Alice Loizidis,
Victoire & Jean-Marc Chancel
Stabilité : Bollinger+Grohmann
Techniques Spéciales/PEB: Pluricité
Maîtrise d’ouvrage : Petite Île SRL
Rénovation et réaffectation d’un ancien complexe industriel de 1860 en équipement sportif à vocation de salle d’escalade de blocs, et petit programme annexe d’horeca.
Chantier prévu : printemps 2026.
Chantier prévu : printemps 2026.















